
07.2023
BORA è sinonimo di soluzioni innovative nell’ambiente cucina che mettono in discussione quanto già conosciuto. Tutti gli elettrodomestici da incasso per la cucina di standard elevato prodotti dell’azienda di Raubling, nell'Alta Baviera, si caratterizzano per la loro tecnologia innovativa e il design di alto livello. Questa filosofia si riflette anche nell’edificio dell’azienda: oltre che per i capannoni industriali standardizzati e per le tipiche costruzioni dedicate agli uffici, BORA si caratterizza per un'architettura avveniristica dotata di grande forza espressiva. È così anche per la nuova sede aziendale di Herford, il polo industriale tedesco dei mobili da cucina situato in Vestfalia orientale. Realizzata in vetro e acciaio, apparentemente sospesa e inclinata in modo vertiginoso, a partire da metà settembre la costruzione permetterà a tutti i visitatori di immergersi nel mondo della marca e dei prodotti e scoprire così il “principio BORA” sotto diversi punti di vista. Il progetto è opera dello studio austriaco LORENZATELIERS, lo stesso che ha già concepito l’iconica architettura BORA di altre sedi.
Visibile in lontananza, il nuovo edificio BORA sorge alle porte della cittadina di Herford. La costruzione a forma di ala in vetro e acciaio è lunga cento metri e alta 13,5 e sembra stare sospesa sul terreno grazie ai finissimi sostegni in acciaio. L’effetto dinamico creato dall’architettura toglie letteralmente il fiato, in particolare se ci si trova al di sotto della facciata che sporge a un’inclinazione di 42 gradi ed è orientata a sud in direzione della strada statale che la costeggia
Il fondatore dell'azienda Willi Bruckbauer voleva che il nuovo edificio di Herford precorresse i tempi e che non si fosse visto niente del genere da nessun’altra parte prima d’ora. Ha deciso di non bandire un concorso e si è rivolto direttamente a Peter Lorenz, con il quale aveva già realizzato in passato progetti a dir poco interessanti: “Fatemi appassionare a una proposta che non esiste ancora in nessuna parte del mondo". L'architetto, che dirige lo studio LORENZATELIERS a Vienna, Innsbruck e Trieste, e con il quale Bruckbauer ha già realizzato la sede BORA a Niederndorf (AT) e l'edificio per uffici BORA a Raubling (DE), ha accettato la sfida. "Niente mi stimola di più della possibilità di realizzare progetti architettonici insoliti, non convenzionali, e godere della fiducia di un cliente coraggioso nel farlo", afferma Peter Lorenz.
Delle dieci proposte presentate per il nuovo edificio di Herford, alla fine la preferita è stata la struttura a forma di ala, che si vede già bene dalla strada statale B 239 all’entrata della città. L’interpretazione architettonica dà perfettamente voce all’anima del marchio BORA: coraggio imprenditoriale e grande forza innovatrice per progettare prodotti straordinari e offrire esperienze uniche a tema culinario.
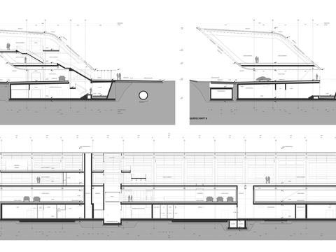
Architettura come esperienza: la nuova sede BORA nasce dall’unione di una struttura sorprendente e di un involucro dinamico.
La costruzione, estremamente complessa dal punto di vista tecnico, è composta da una struttura portante fatta da un telaio d'acciaio alto dieci metri a rombi con angoli arrotondati, che sembra sospesa sul suolo. La struttura lunga quasi cento metri avvolge una facciata composta da elementi in acciaio zincato perforati di diverse dimensioni con elementi in vetro, di cui alcuni colorati, che conferiscono all'edificio un aspetto armonico e un'atmosfera high-tech. L’idea è quella di avere la possibilità di guardare da dentro verso fuori e da fuori verso dentro – la trasparenza parziale della facciata riflette la volontà di collegare l'edificio con l'ambiente circostante e di creare un dialogo tra le persone all’interno dell’edificio e quelle di passaggio in macchina. Il principio alla base del progetto di Lorenz, che punta a creare un'architettura immediata grazie alla struttura a vista, incarna perfettamente la filosofia di BORA. In particolare nello spazio interno, le enormi travi d'acciaio provenienti dall'Alto Adige rimangono intenzionalmente visibili e senza rivestimento.
Le deformazioni della struttura portante in diverse condizioni di carico sono state analizzate a fondo dal team di Werkraum Ingenieure per poi essere realizzate dalle imprese di costruzione. La deformazione massima di 130 mm in corrispondenza del bordo a forma di rombo è stata compensata con un rialzo della forma del laboratorio. La tolleranza delle diverse strutture principali in calcestruzzo, acciaio e facciate è stata unita grazie a una collaborazione esemplare.
L’inclinazione in orizzontale dell'area delle facciate ha rappresentato una sfida per gli addetti ai lavori. Per questo punto di forza nel vero senso della parola è il tetto cabrio: due elementi scorrevoli di copertura, ciascuno di 63 metri quadrati, offrono un’esperienza spaziale unica nell'area direttamente sopra la zona lounge e ristorante quando il tempo è bello – e l'interferenza sonora delle migliaia di veicoli che passano è quasi nulla. L'interno all’occorrenza può trasformarsi in un esterno inondato di luce. "Non esiste una copertura in vetro scorrevole più grande di questa in Germania", spiega l'architetto Peter Lorenz. “La realizzazione è stata una vera e propria sfida per via delle dimensioni e della statica, ed è anche uno dei motivi per cui l’edificio è risultato così impegnativo non solo per noi architetti e progettisti ma anche per le imprese di costruzione”. Tanto per fare un esempio abbiamo trovato una sola azienda disposta a lanciarsi nell’impresa di realizzare il tetto cabrio nell’area delle spedizioni.
L’ambiente aperto con vetrate orizzontali e i materiali da interni accuratamente ottimizzati, per i quali Willi Bruckbauer, falegname di formazione, ha un occhio particolare, danno vita a un ambiente perfetto per scoprire da vicino i prodotti e il marchio. Il nuovo edificio nella sede di Herford sarà aperto ai visitatori a partire da metà settembre 2023 come showroom permanente di BORA. Le innovazioni dei prodotti BORA possono essere presentate in occasione di eventi culinari dal vivo. Il nuovo edificio è formato da due piani e ospita il Flagship Store BORA, una cucina a vista, aree espositive per i partner e un ristorante, per un totale di circa 2000 metri quadrati di spazio.
Standard di sostenibilità: l'edificio è dotato di tecnologie avanzate ed è immerso nel verde
La postazione protetta dalle intemperie di 80 veicoli sotto l'ala BORA consente di massimizzare l'area non asfaltata e quindi di creare uno spazio verde nel rispetto dei desideri dei vicini. Come nelle altre sedi BORA, anche qui saranno disponibili diverse stazioni di ricarica per veicoli elettrici. Per Willi Bruckbauer è importante limitare al minimo l’impronta ambientale della nuova costruzione. “La nostra nuova sede è stata costruita principalmente da aziende e professionisti dell'area di Herford e della Vestfalia orientale”.
Il profilo energetico è adattato all'uso specifico dell'edificio. Infatti, soddisfa lo standard 55 KfW grazie all'utilizzo di energia geotermica rinnovabile (scambiatori di calore e profonde perforazioni del terreno) e all'occupazione massima dell'area del tetto – ad eccezione dell'area del tetto cabrio – con moduli fotovoltaici. Questo impianto fotovoltaico da 100 kWp fornisce elettricità all'edificio. Il fabbisogno di energia termica è generato con pompe di calore in combinazione con venti sonde a 130 metri di profondità. Così si può rinfrescare per la maggior parte dell'anno. Per coprire i picchi di carico, in estate e in inverno, come accumulatore termico viene utilizzata l'acqua del bacino di irrigazione da 200 metri cubi presente nel sito.
L'intero edificio può essere ventilato meccanicamente con recupero di calore. L'aria di alimentazione viene immessa nel locale tramite un sistema di diffusione a dislocamento sul pavimento. Il ricambio d'aria viene automaticamente ridotto al minimo grazie ai sensori di CO2. Durante le mezze stagioni, l'area espositiva può essere ventilata attraverso la facciata. I pannelli climatici ad azione rapida e a tutta superficie sui soffitti consentono di riscaldare e raffreddare gli interni. La combinazione dei sistemi di trasferimento dell'energia garantisce un elevato livello di comfort termico con la massima efficienza energetica.
A seconda del suo utilizzo, l'edificio BORA Herford sarà un "NZEB - Nearly Zero-Energy Building".
Carta d’identità della sede BORA di Herford
Lunghezza: 95m
Altezza: 13,5m
Superficie di costruzione: ca. 2000 mq
Superficie del terreno: ca. 10.000 mq
Struttura portante: armatura in acciaio con elementi in calcestruzzo precompresso
Facciata esterna: lamiere zincate con fori
Inizio lavori: marzo 2022
Inaugurazione: settembre 2023
Il file ZIP contiene il comunicato stampa e le immagini.